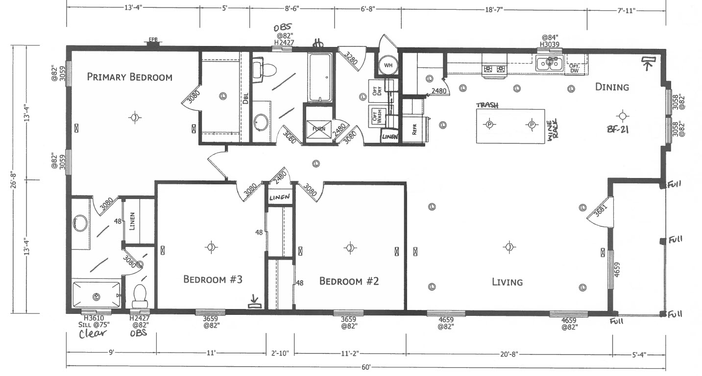
Experience the newest home at The Colony—a BRAND NEW, airy, modern 3‑bedroom haven available early 2026. Enjoy a bright open floorplan, stylish Sea Stone solid‑surface counters, and sleek vinyl plank flooring throughout. With inviting covered sitting areas, a charming front porch, and outdoor space perfect for planting, this beautifully appointed home blends comfort, style, and effortless living.




