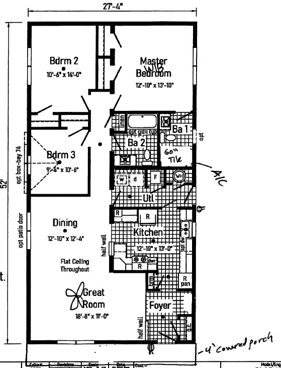
Brand new home in Manteno’s Maple Valley. This lovely three bedroom home has a 1 year warranty. Large kitchen, LR and formal entry. Ready to go for a two-car garage with concrete foundation. Sought after oversized front porch for relaxation on a quiet street in the neighborhood. Luxury vinyl plank flooring throughout the entire home with Whirlpool stainless steel appliances. This home is a “Must See”.




